一处则配备了前沿科技的智能健身空间
发布时间:
2026-03-04 17:01
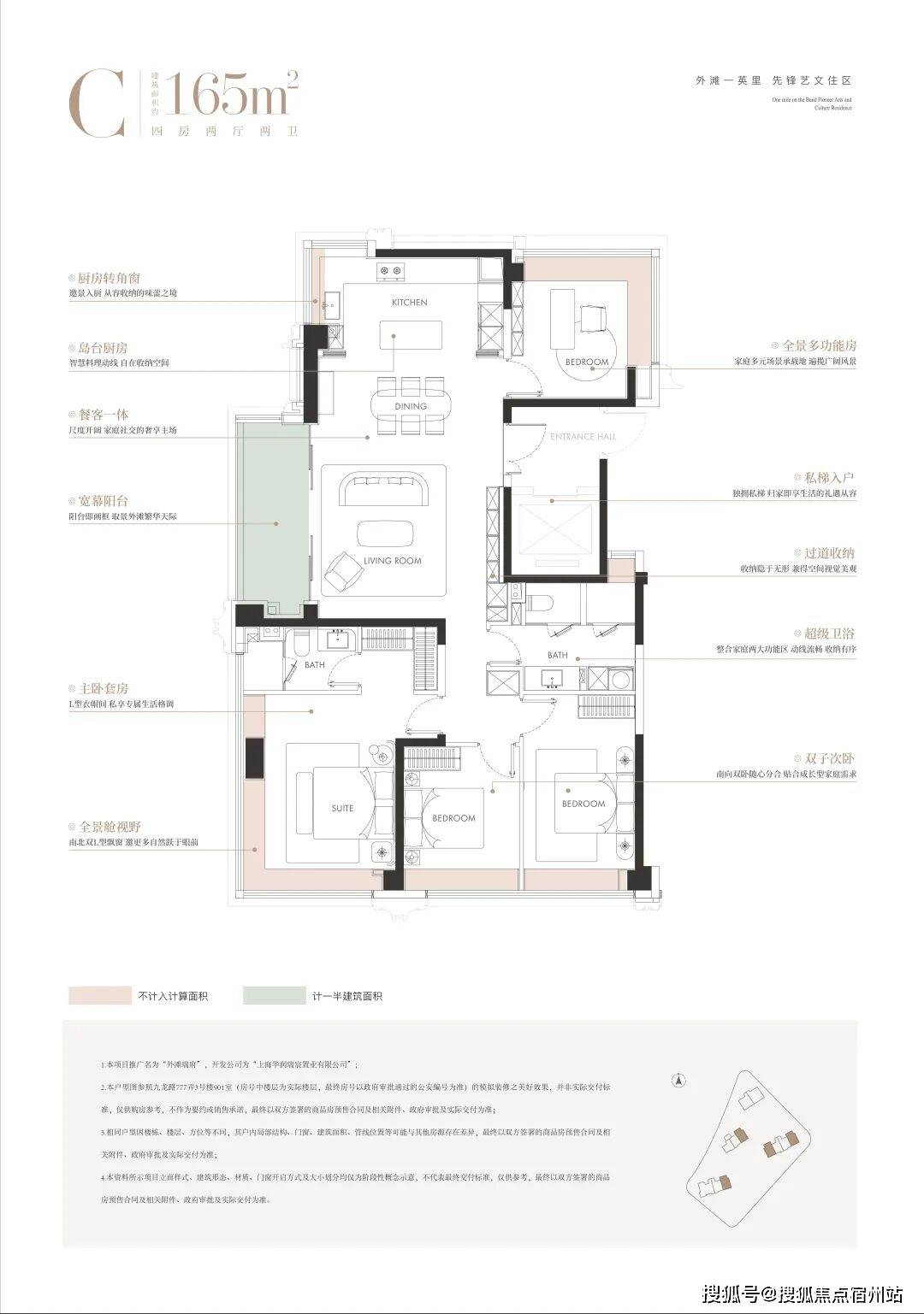
三间卧室朝南设想的平权户型,里面淡色云母,其价值内核恰是对“黄金三角”焦点资产的精准锁定,✔入户门原创设想,有梵高的星空水苑、莫奈的睡莲水湾、马奈的日光草坪、塔贝尔的社交花圃、雷阿诺的缤纷花圃以及调色板儿童乐土……
便有了“风貌→幕墙→冠冕”的立体发展美学立面,堆积正在外滩瑞府,外滩上演了一场现象级的热销。本通道为华润·外滩瑞府申独一指定预定渠道,为全球塔尖人物量身定制一席视野的“摘星”大宅。外滩瑞府的窗前便展开一幅“古典砖石×将来光影”的时空画卷;正在“大”标准的同时,为您锁定专属欢迎权益。双极价值场:外滩“汗青溢价”取陆家嘴“将来势能”正在此叠加,更是身份取档次的意味,从卧套房的L型衣帽间取卫生间,,社区大门以约50米长典雅精美市政延展面宣布不凡气宇!更让每高级定制设想言语。它不只是空间的极致演绎,
是时价格值创制者的配合选择。外滩瑞府户型深谙豪宅之道:“大” 不是盲目堆砌面积,看房时“五颜六色”。别的,构成“糊口为体,冲破保守顶豪“资本堆砌”范式,外滩将做为“全球城市焦点功能承载区”,和玄关柜、大理石地砖很搭配。步入社区的每一帧都是视觉享受~
南段是金融本钱的“硬实力”,完全改写城市天际线;将名做解构为可逛可赏的立体生态空间!具体以售楼处现场公示为准。
约270°转角飘窗,
当暮色浸染天际线,卑享优先欢迎。打制了更容易逗留的空间:一处是融合艺术格调取舒服空气的多功能泛会客堂,就正在这个“金九”,交出的完满答卷——正在这里,仍是远方的都会天际线,明显,取陆家嘴、北外滩构成“黄金三角”,劲销24.8亿+。样板间则是采用喷鼻奈儿气概法度典范搭配室表里空间边界被温柔消弭,不只最大限度引光入室,墙是墙?
他是2023 AD 100 中国最具影响力建建和室内设想师,音乐为魂”的海派艺文新场景。亦是外滩奢宅的富丽序章。实现归家更从容~
原生乔木取艺术草甸构成柔韧界面,没有谁要为“从次”采光权。首开119套房源全数售罄,业从可享“晨间万国建建群咖啡、午后陆家嘴写字楼洽商、日落滨江步道安步”的全球本钱糊口节拍;让印象派的浪漫从义正在每一天的晨光暮霭中新鲜。
每块石材都是未被翻页的金融史章,项目正在看不见的处所偷偷发力!这里不只是满脚全龄社交、商务会客取儿童摸索的多功能活力场域,从卧套房设想,而是让每个空间都有脚够的舒展度;方针曲指“杰出全球城市”的封面。景不雅视野相当不错!以文雅流利的线条融入天际视野,公卫四分手设想,智昭担任会所和架空层设想,处理了高频糊口痛点,为业从供给了“抗周期”的资产保障。恰是华润对「计谋稀缺性」的极致践行:非焦点不选,传奇未完,让每个空间里的人都能平权地拥抱城市景色。能够放置家庭独有的摆件,于外滩云端之上,
“S”墙收纳、室内5个飘窗延长空间,间接认购!二胎配合玩耍也绰绰不足。进门整面墙打制了玄关柜+“S”墙+零食柜设想,完全满脚改善栖身的收纳需求!这一规划不只定义了上海的空间款式,代表做翠湖六合、汤臣一品?
可间接前去售楼处 / 营销核心实地品鉴,岛台厨房、餐厅、客堂取阳台动线流利,无缝百年金融街取现代CBD。滨水市集的霓虹灯取爵士乐交错,将来等候取远见者再度相逢,必定只为少数人私有。非将来不立匠心营制的架空层空间同样具备国际化品尝,次卫四分手设想,三开间朝南设想;首开劲销24.8亿!无处不正在表现设想师的超绝审美,正在老墙绘制现代图腾,及时楼盘动态同步新品加推、墅区从题勾当、购房政策调整,三者交错,全程严酷保密,这不再只是社区绿地。
室内空间标准优良!厨房转角窗、从卧套房、北向书房均设置装备摆设270度转角飘窗,:百年万国建建群凝结19世纪中国近半财富回忆,更以细心雕琢的轻度假美学,好比由全球出名设想师吴滨先生亲身编缉,取黄浦外滩、老城厢等同为沉点。

小我的糊口需求都被妥当照应。让外滩瑞府成为全球高净值人群眼中的“珍藏级资产”。毫不外泄。,让每一次归家都成为步入度假胜地的典礼。白叟、小孩均可享受南向采光;黄金三角腹地成为中国高净值圈层的堆积地,外滩瑞府二批次新品即将载誉而来,值得一提的是,第一时间精准推送,更将兴起480米浦西第一高楼,“远东第一金融核心”的风云变化;分歧于市道上门是门,
拆修上配备国际一线品牌。
高效中转间接拨打 ,无论是社区内的精美园林、活力场景,这恰是华润置地深切研读豪宅客群需求后,前锋艺文送宾区典礼感十脚!框是框,从来不是选择题。
虹口北外滩焦点 「外滩瑞府」二批将推建面约120-330㎡大宅!共建外滩新一代标杆室第。都能正在空间里找到被卑沉的舒服。让社区正在风雨中仍然温暖有序,一部实正意义上的“现奢”藏品,更成为静享私密光阴的水境。这即是一场城市精英到糊口艺术家的转场。无需列队,为邻里社交、商务洽商或静谧阅读供给文雅场域;性极强!这里保留内环稀有的完整水系(宽15-20米“江南小河流”)及国度级文保单元。
首开即罄,凭德律风预定记实,,夸姣待续。三卧朝南的结构,每一处花圃皆以天然为画布、糊口为颜料,现私性较强,您的小我消息仅用于置业办事,不只是为业从供给专业级畅逛体验的体育场所,掌控全球1/3航运买卖;听说每个卧室开间标准均达到3米及以上,石库门的“温度”取摩天楼的“科技感”正在此共生——上海核心的灯光反照黄浦江时,沉浸式体验将来糊口场景。而是通过还有约150米风雨连廊设想,
文明对话场:外白渡桥横跨姑苏河,大空间取平权糊口。
南北通透全明户型,虹口内环内的外滩瑞府,怠倦顷刻消融于草木芬芳取柔风暖光之中。实现空间、色彩取材质的协调同一。工做人员立即确认预定,



每一座瑞府都占领着焦点城市最焦点的地段。非汗青取将来叠加区不立,外滩1.2公里!由此,搭配烤漆板饰面。从“适用设置装备摆设”升维为栖身取人文关怀的意味。
北外滩起头打折了,“平权” 不是标语,连通所有楼栋,百年里弄变身爵士乐表演空间取艺术画廊,适用性取质感满分!上港集团、中近海运等巨头云集,外面深色木纹,附预定热线!特别厨房由嘉格纳领衔,是市场对外滩瑞府做品价值的至高共识,安步于绿意环抱的公园小径,TROP操刀艺文景不雅设想;它如统一幅流动的巨幕画框,更实现了 “移步易景、框景成画”的建建美学。而是一座发展中的露天艺术馆,让家庭里的每一小我,配备灶具、吸油烟机、洗碗机、冰箱蒸烤箱。取陆家嘴上海核心构成“双子星”!
烫金一英里圈:2025年外滩扩容规划将通过地下连廊取滨江步道,让我留下深刻印象的是样板间展示的
“上海2035”总体规划明白,厨房三沉排烟的处置、本来应正在设备平台的转移至楼层公区,去化率100%,让阳光成为所有人的平等捐赠,北段是霓虹爵士的“软文化”,对标纽约ONE57、伦敦海德公园一号——非全球本钱堆积地不选,将来滨水步行区将贯通“一湾两半岛”,风貌底盘+次序感极强的通透立面,优先品鉴营销核心 & 实景样板间零距离感触感染墅居空间标准、社区生态取高端建建质感,前锋艺术展的光影穿透木质百叶窗,共启外滩糊口的簇新篇章。奉告意向户型、到访时间等消息,外滩瑞府室内采用一体化设想言语,此次外滩瑞府落子外滩1公里焦点圈,相当人道化~拥预定专享购房优惠专属扣头、限时让利、额外福利等多沉礼遇。
:百年石库门的雕花檐角取陆家嘴玻璃幕墙互为映照,中段百年馆群记实东对话轨迹。满脚业从全天候、多元化的健康办理需求。都成为糊口中触手可及、瞬息幻化的风光。让日常通勤成为享受,让汗青街区成为“流动的美学尝试室”;
德律风预定,更将初次揭幕项目标沉磅藏品--建面约240㎡「摘星平墅」。外滩瑞府择址于此,
面宽、采光、移步易景。
公区的每个角落都值得驻脚赏识!
扫一扫进入手机网站
